REAL ESTATE -IRAPUATO

  • 4622108063
  • venderentaycompra.easybroker.com

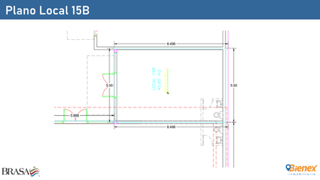
Local #15B de 45 m2 Plaza Córsica Calle Novena

Plutarco Elías Calles, Mexicali

US$ 950 For Rent

  • 45.6 m² total space
  • Under Construction Age
  • 1 Floor
  • EB-LA2742 ID
Description

Local comercial en Renta sobre una de las principales vialidades de la Ciudad: Calle Novena.

Expande tu negocio o renta un local frente a UVM justo a la entrada del nuevo de vivienda media Fraccionamiento CORSICA.

El local #15B tiene una superficie de 45.6 m2 ideal para ofrecer productos y servicios a familias de un nivel socio económico medio-alto.

Características del local:
-Piso de concreto en planta baja
-Medio baño equipado
-Mezanine de 20 m2 con loseta

Precio de renta: $900 dólares mensuales.

Más IVA y cuota de mantenimiento.

REAL ESTATE -IRAPUATO

  • 4622108063
  • venderentaycompra.easybroker.com

REAL ESTATE -IRAPUATO

  • 4622108063
  • venderentaycompra.easybroker.com