 Ver Tour Virtual
Ver Tour Virtual
          - $34,000,000 En Venta
- 4 recámaras
- 7 baños
- 917 m² de construcción
- 917 m² de terreno
- 3 Estacionamientos
Detalles
- Tipo: Casa
- ID: EB-UO7978
- Antigüedad: A estrenar
- Recámaras: 4 recámaras
- Baños: 7
- Pisos: 3
Descripción
Descubre el potencial de esta espectacular residencia en obra gris, ubicada en una de las zonas más exclusivas del sur de Monterrey.
Situada sobre un terreno de aproximadamente 917 m², esta propiedad ofrece impresionantes vistas panorámicas a las montañas y un avance del 60% de construcción. Se entrega con diseño arquitectónico y proyecto ejecutivo para su terminación total.
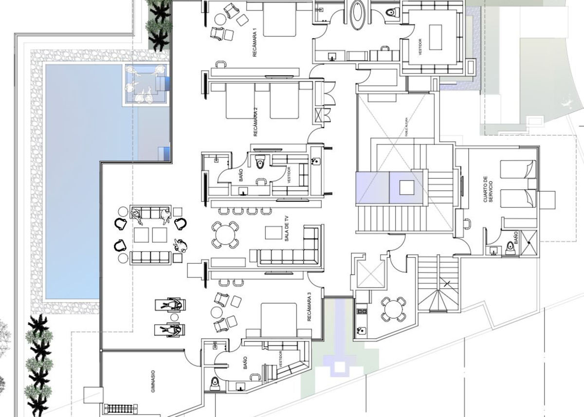
Con una construcción proyectada de casi 1,000 m², esta residencia fue diseñada para aprovechar cada espacio y combinar lujo, amplitud y confort:
🔹 Sótano: área social con sala de cine, bar y patio techado con vistas espectaculares.
🔹 Planta baja: elegante recibidor, amplia sala, comedor, antecomedor, gran cocina con alacena, estancia familiar y terraza con alberca, área de asador y comedor exterior. Además, recámara principal con baño de lujo y walk-in closet.
🔹 Planta alta: tres amplias recámaras, cada una con baño y vestidor, acogedora sala de TV y áreas de servicio completas.
Cuenta con cochera para 3 autos y preparación para elevador.
✨ Una oportunidad única para personalizar y finalizar a tu gusto una residencia de ensueño en el exclusivo sector Sierra Alta.
Amenidades
- Estacionamiento techado
- Facilidad para estacionarse
- Jardín
- Parrilla
- Terraza
- Fraccionamiento privado
- Seguridad 24 horas
- Área de juegos infantiles
- Cancha de pádel
- Cancha de tenis
Ubicación
 
         
       
       
       
       
       
       
       
       
       
       
       
       
       
       
       
       
       
       
   
   
            








