Ver Tour Virtual
- $25,000 MXN En Renta
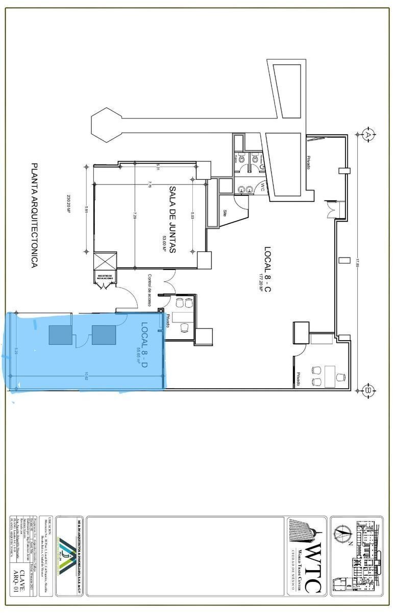
- 56 m² de construcción
Detalles
- Tipo: Local comercial
- ID: EB-BU1802
- Piso: 3
- Mantenimiento: 5600
Descripción
Con posibilidad de atención al público.
Importante: Si tu giro requiere para su funcionalidad mucho flujo de gentes, este local se encuentra en un pasillo del tercer piso .
Uso de suelo: Comercial y oficinas.
NO GIROS QUE REQUIERAN TOMA DE AGUA NI DRENAJE
No cuenta con cajones de estacionamiento pero se pueden rentar de manera independiente ($mil ochocientos más IVA)
Requisitos: 1 depósito en garantía, renta que corre, contar con fiador libre de gravamen en la CDMX, y póliza jurídica
Amenidades
- Accesibilidad para personas con discapacidad
- Elevador
- Seguridad 24 horas
- Accesibilidad para adultos mayores
Ubicación











