Ver Tour Virtual
- $171,450 MXN En Renta
- 4 baños
- 635 m² de construcción
- 6 Estacionamientos
Detalles
- Tipo: Oficina
- ID: EB-TK5392
- Baños: 4
- Piso: 6
- Mantenimiento: 17145
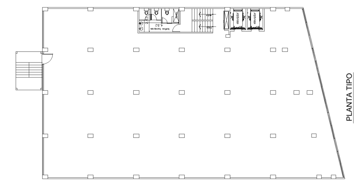
Descripción
Edificio de 8 niveles
635 m2
3,600m2 de Oficinas
Obra Gris
1 estacionamiento cada 100 m2
Renta $270 MXN + 10%Mtto
Amenidades
- Estacionamiento techado
- Facilidad para estacionarse
- Conmutador
- Elevador
- Seguridad 24 horas
- Una sola planta
Ubicación











