 Ver Tour Virtual
Ver Tour Virtual
          - $65,000 En Renta
- 360 m² de construcción
- 606.15 m² de terreno
- 3 Estacionamientos
Detalles
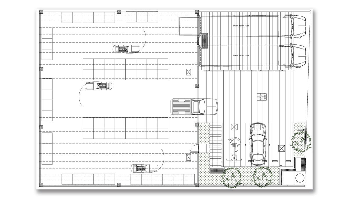
- Tipo: Nave industrial
- ID: EB-UG5302
- Clave interna: 51
- Antigüedad: A estrenar
- Pisos: 1
Descripción
Nave industrial configurable con posibilidad de integrar oficinas ejecutivas, sistemas contra incendio y CCTV, ideal para uso de almacenamiento, distribución o logística.
Características de la nave:
- Terreno privado de 606.15 m2
- Nave 360.00 m2
- Patio de maniobras y servicios 246.15 m2
- Altura máxima 10 m
- 3 cajones de estacionamiento independientes para vehículos
- 2 andenes para carga y descarga independientes en cada nave
- Rampa para vehículos ligeros y pesados
- Pisos MR de alta resistencia
- Servicios independientes por nave (agua, acometida eléctrica en tres fases, fibra óptica)
- Patios de maniobras con posibilidad de cerca perimetral
-Oficinas con comedor y núcleos sanitarios (opcional)
- Cortinas enrollables mecánicas
Beneficios del parque:
-Ecotecnologías
- Urbanización de primer nivel
- Control de acceso
- Vigilancia 24/7
- Vialidades con asfalto
- Iluminación urbana solar
- Drenaje pluvial (Recarga de mantos acuíferos)
- Fibra óptica
- Red de agua potable
- Hotel operativo
El precio publicado es más IVA
En Castelli Park no solo adquieres una inversión estratégica, sino un modelo integral de soluciones ilimitadas.
Contáctanos hoy y agenda tu visita.
Amenidades
- Andén
- Facilidad para estacionarse
- Accesibilidad para personas con discapacidad
- Rampas
- Seguridad 24 horas
Ubicación
 
         
       
       
       
       
       
       
       
   
   
            










