Ver Tour Virtual
- $16 USD por m² En Renta
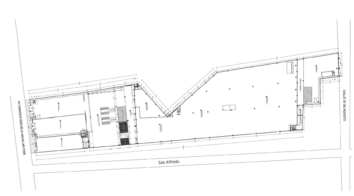
- 9,258 m² de construcción
- 12,203 m² de terreno
Detalles
- Tipo: Nave industrial
- ID: EB-VT1402
- Antigüedad: 1996
Descripción
✔ 9,258 m² de área rentable.
✔ 12,203 m² de superficie total.
✔ 1,446 m² de oficinas integradas.
✔ Altura libre de 6 metros.
✔ Energía instalada de 500 KVA.
✔ Cisterna de 30,000 litros y conexión a red municipal.
✔ Muros de block y lámina.
✔ Ideal para operaciones de última milla y distribución urbana.
✔ Acceso inmediato a corredores logísticos del sur y oriente de CDMX.
Ubicación









