Ver Tour Virtual
- $71,053.50 MXN En Renta
- 8 baños
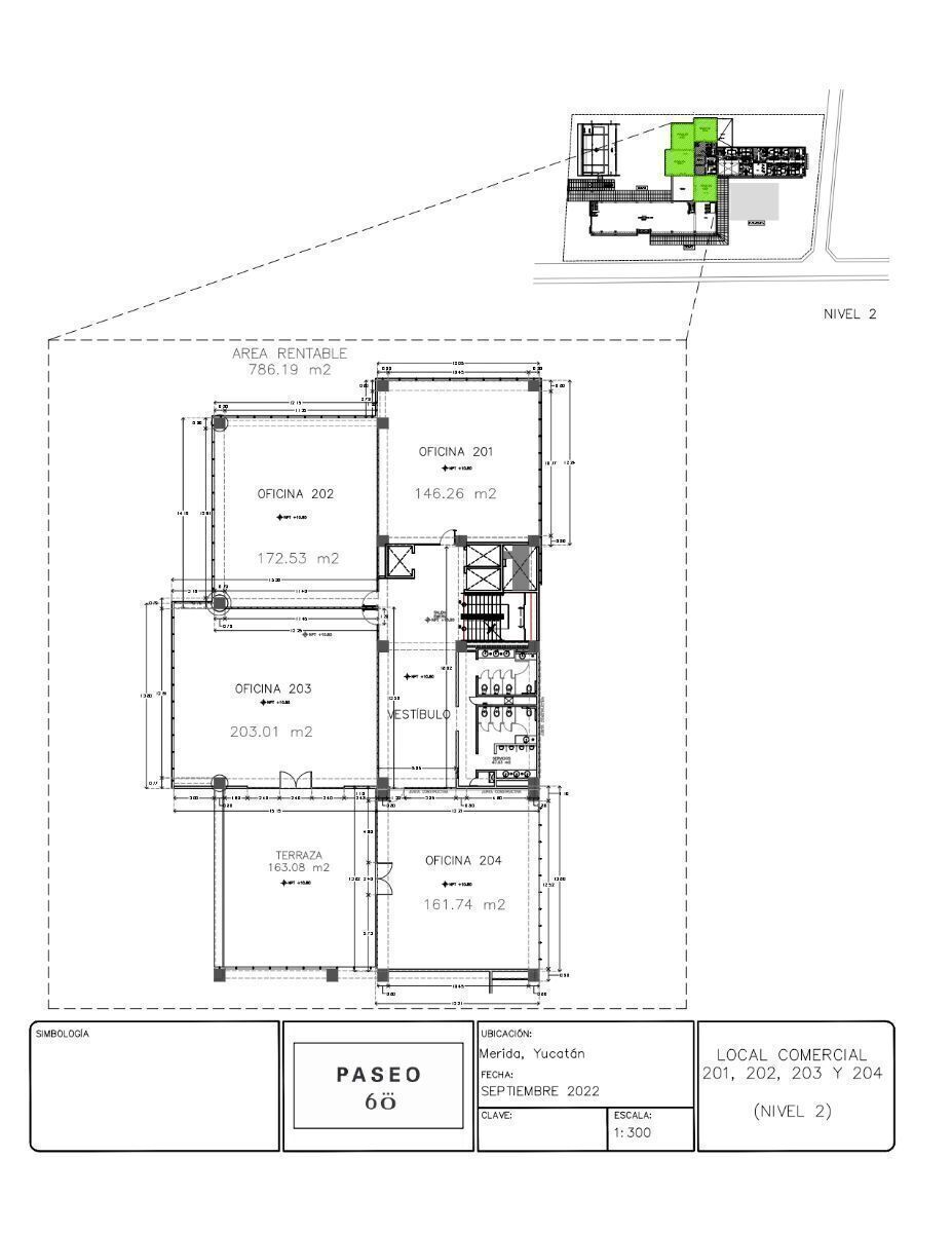
- 203.01 m² de construcción
- 6 Estacionamientos
Detalles
- Tipo: Oficina
- ID: EB-UU4802
- Baños: 8
- Piso: 2
Descripción
La oficina se entrega con instalación de piso, baño compartidos, tuberías para adecuaciones de instalación hidráulica, sanitaria, voz y datos, eléctrica y AA.
Oficina: 203.01 m2
Renta Mensual: $350 por m2
- $71053.5
Cuota de Mantenimiento 12% del valor de renta
La cuota de mantenimiento incluye:
• Limpieza de áreas comunes
• Vigilancia áreas comunes y estacionamiento
• Luz área comunal
• Fumigación área común
• Agua área común
• Publicidad en medios y redes sociales
• Jardinería espacios comunales
• Uso de Motor Lobby como espacio vehicular de transición
• Actividades y eventos
• Planta de tratamiento de aguas residuales
• Terraza sin costo de renta
• Mantenimiento a Elevadores y Escaleras eléctricas
• Sistema de CCTV en espacios comunales
Amenidades
- Patio
- Terraza
- Accesibilidad para adultos mayores
- Circuito cerrado
- Elevador
- Fraccionamiento privado
- Oficina
- Seguridad 24 horas
Ubicación










